经过近六年的详细成本核算、环境影响调查、法院上诉以及不屈不挠与州政府和地方保护主义者的法律较量,乔布斯在1984年购买的建于20世纪20年代的伍德赛德(Woodside)豪宅,终于等到了开工重建的那一刻。
在原先豪宅所在地上,苹果CEO计划花费845万美元建造一所全新的住宅。但首先我们先要了解一些历史。这所旧房子(现已破旧)是为铜业巨擘丹尼尔·杰克林(Daniel Jackling)设计的西班牙殖民复兴风格的房子,有30个房间、14间卧室和13个半的浴室。
乔布斯最初是在1984年购买这所豪宅,并在里面生活了大约10年,然后断断续续租了一段时间。现在该房子已经空置了近十年。早在2004年,伍德赛德市议会就批准了乔布斯的拆迁许可证申请,但又与环保护主义组织Save Our Heritage(拯救我们的遗产)达成协议,要求作为文物来保护这所住宅。随后一位无情的面向未来的高科技公司首席执行官与一个只关注历史的组织展开了激烈的法律交锋。这种交锋从来都不是漂亮的。

乔布斯新宅及外围设计草图(腾讯科技配图)
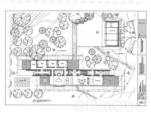
至于乔布斯的新家,与杰克林的房产完全不同,面积只有现有地产面积(4910平方英尺)的1/3,乔布斯的未来住宅是最实用、最适度的,即使不考虑他的亿万富翁身份。不考虑其他的,但就提交给伍德赛德市议会的概念性计划,就没有任何高耸的玻璃和钢结构的建造,而是小的、私人隐居式住所。根据设计图纸草稿,乔布斯打算种植600亩的土著植物品种;一个简单的供放三辆车的车库;一个有很多窗台和5个卧室的房子,一个石头铺成的步行通道网络和一个私人菜园。一切都整洁、紧凑、务实和合适。
在有8个卧室/9.5个盥洗间的原住所主建筑上,乔布斯选择建设一个不起眼的生活/工作空间,面积为原先一半。这个空间没有司机的房、没有做饭的房、没有网球场。事实上,与甲骨文CEO拉利-埃里森花费7000万美元建造的日本封建时期风格的房产相比,乔布斯的新宅似乎是彻头彻尾的修道院。
奥斯汀Sentient Architecture的执行合伙人克里斯托弗·特拉维斯(Christopher Travis)称:“该建筑规划绝对显示了有钱人的非本性约束。这种事情只会发生在客户向建筑师发出具体指示,要求实用和简约时。我可以说这个规划是由乔布斯特别要求的结果,即要求平淡和简单...这几乎是东方苦行僧式的。”
估计平整土地和建设新家大约需要22个月。虽然目前还不清楚这些计划多少部分最终可得到实施,预计乔布斯将在一切准备妥当时,向该市提交另一份详细的计划。但有一点几乎可以肯定:史蒂夫不会很快再购买另一个旧豪宅。

乔布斯新宅室内设计图(腾讯科技配图)